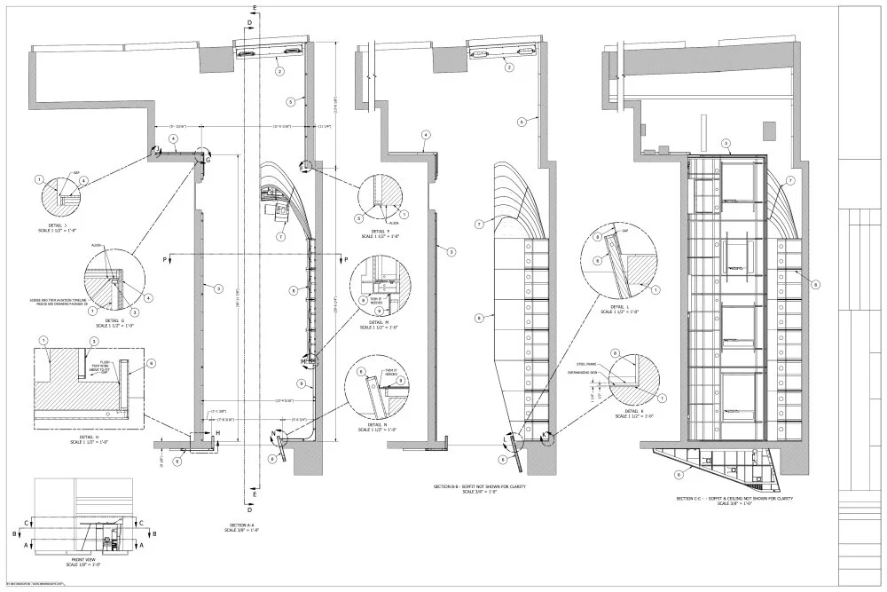
Project: JetBlue Children's Play Area, JFK Airport Terminal 5 2016
End User: JetBlue
Client: Showman Fabricators
Design: Lee H. Skolnick Architecture + Design Partnership
Services: Technical Design, Drafting & Detailing